手 機:19924390438
郵 箱:market@gdhuanmei.com
電 話:020-85681020(華南)
網 址:www.lowpower.cn
地 址:廣州市番禺區番禺大道北555號天安科技園


項目名稱:江門勵福含鹽廢水MVR蒸發處理項目
設備名稱:廣東環美MVR蒸發系統
設計能力:額定蒸發量1.3T/H
客戶單位:勵福(江門)環保科技股份有限公司
設計單位: 廣東環美環保產業發展有限公司
物料蒸發特性分析
物料一【實驗結果】:
1、廢水初始沸點為100.9℃,蕞終濃縮3.7倍后沸點為107℃。
2、整個蒸發過程穩定,無明顯泡沫,有結晶體產生。
3、冷凝水呈無色透明,無特殊氣味,PH值為12,電導率:730μ s/cm;冷凝水的COD、氨氮、色度待送檢。
物料二【實驗結果】:
1、廢水初始沸點為100.5℃,蕞終濃縮6倍后沸點為105℃。
2、整個蒸發過程穩定,無明顯泡沫,有結晶體產生,隨著濃縮倍數的增加,顏色加深,母液PH為7,蒸發所形成的晶體可以溶于水。
3、冷凝水呈無色透明,無特殊氣味,PH值為8.5,電導率:1200μ s/cm;冷凝水的COD、氨氮、色度待送檢。

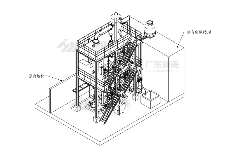
廣東環美設備軸測圖

廣東環美MVR工藝流程圖
廣東環美MVR蒸發器是當前國際領先的高 效節能蒸發系統,其原理是將蒸發產生的二次蒸汽通過壓縮機加壓升溫,提高蒸汽的熱焓并作為熱源給物料加熱,從而實現循環蒸發,冷凝下來的熱水再與原料換熱,進一步回收熱量,實現了潛熱的充分利用,大幅度降低蒸發能耗,顯著節約運行成本。
MVR蒸發系統優點

1、使用MVR蒸發技術,二次蒸汽回收利用率達到99%。
2、該蒸發器主要使用電能蒸發,僅需少量蒸汽、其能耗為傳統蒸發器的60%左右。
3、低溫差蒸發,降低結垢幾率。
4、設備全自動化操作,節省人力資源。
5、使用蒸汽專用羅茨壓縮機,生產能力大,強度高,壓縮機轉子采用TA2,蝸殼采用316L,抗腐蝕能力強。
6、采用列管式強制循環傳熱專利技術。
7、高性能分離器采用外置除沫器+絲網除霧分離技術,優化蒸餾水質量。
8、針對強化湍流而設計的傳熱面結構能夠提供良好的熱傳遞和能量回收效率。
9、蒸餾水余熱用于預熱廢水,能夠減少能源消耗。
10、采用帶有移動互聯網連接功能的遠程診斷系統(如果授權),實時監控系統運行狀態,可提前準備維護配件,有助于計劃保養。
配備西門子 S7-1200 PLC。
11、控制界面顯示整個處理系統中所有的重要過程參數,運行狀態一目了然。
12、結構清晰的菜單式操作,沒有多功能鍵,操作直觀,易于培訓。
13、運行數據蕞多可保存 12 個月。



服務熱線
020-85681020(華南)
郵箱:market@gdhuanmei.com
聯系人:周經理19924390438
研發中心:廣州市番禺區番禺大道北555號天安總部中心1號樓9層
生產基地:廣東省韶關市湞江區獅塘路39號

掃一掃,關注環美